Проекты ICONIC

Проект виллы на побережье, 470 м2

Эта вилла выполнена в стиле минимализма с элементами тропической современной архитектуры. Чёткие геометрические формы, панорамные окна и натуральные материалы создают ощущение простора, роскоши и гармонии с окружающей природой.
Проекты ICONIC

Проект виллы на побережье, 470 м2

Эта вилла выполнена в стиле минимализма с элементами тропической современной архитектуры. Чёткие геометрические формы, панорамные окна и натуральные материалы создают ощущение простора, роскоши и гармонии с окружающей природой.
Просторные зоны отдыха с минималистичными стеклянными ограждениями и озеленением, создают плавный переход между интерьером и экстерьером.
Интегрированный инфинити-бассейн с лаунж-зоной, создающий эффект бесконечности и роскоши.
В основе архитектуры строгая геометрия с акцентом на горизонтальные линии, что делает дом визуально лёгким и современным. Большие панорамные стеклянные панели с тонкими тёмными рамами создают эффект открытости и максимального естественного освещения
Общий стиль виллы сочетает в себе строгость форм и природную мягкость, что делает её идеальным местом для комфортной жизни и отдыха.
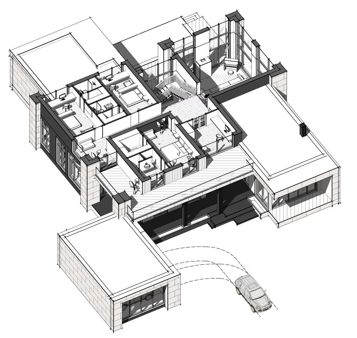
На втором этаже размещен кабинет, блок мастер спальни с большой террасой, и две детские комнаты со своими гардеробами с санузлам.

ПРОЕКТ

На первом этаже центральное место занимает большая лестница с панорамным окном, через которое мы видим террасу и сад. В правом крыле находится большая зона кухни, перетекающая в столовую, доступ к которой есть с крыльца дома. Так же в блоке размещена техническая кухня.

Большая гостиная со вторым светом вмещает в себя большой двухсторонний диван, каминную зону, пианино и зону тв. В левом нижнем крыле находится технический блок, где размещены котельная, постирочная, гардероб, гостевой санузел, спортзал. В ввернем левом крыле размещена больная мастер-спальня и лаунж зона, интегрированная в террасу.