Проекты ICONIC

Двухэтажный дом в Тюмени, 300 м2

Этот дом представляет собой современную интерпретацию классического загородного особняка. Его архитектура сочетает в себе строгую геометрию форм, премиальные натуральные материалы и продуманную интеграцию в окружающий природный ландшафт.
Проекты ICONIC

Двухэтажный дом в Тюмени, 300 м2

Этот дом представляет собой современную интерпретацию классического загородного особняка. Его архитектура сочетает в себе строгую геометрию форм, премиальные натуральные материалы и продуманную интеграцию в окружающий природный ландшафт.
Крыша выполнена в темных тонах, что визуально делает дом более выразительным и солидным. Четкие линии, сбалансированные пропорции и просторные террасы подчеркивают комфортность и престижность этого архитектурного решения. Этот дом — пример элегантной современной архитектуры, где стиль сочетается с функциональностью и природной гармонией.
Фасад оформлен в комбинации дерева, натурального камня и металла, создавая гармоничное сочетание теплых и холодных оттенков. Крупные панорамные окна подчеркивают современный стиль здания, наполняя внутренние пространства светом и создавая ощущение связи с природой.
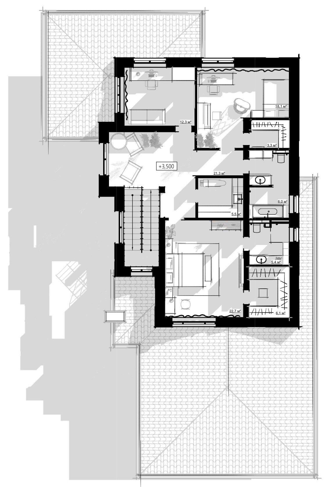
На второй этаже дома располагается просторный холл, кабинет хозяина дома, комната девочки подростка, где учтены сразу несколько зон – отдыха, учебы и зона для занятий на пианино. В комнате так же расположен гардероб.
На этаже в отдельном блоке расположена мастер-спальня с санузлом и гардеробом.
А так же на этаже расположена постирочная и общий санузел с просторной зоной ванны и душем.

ПРОЕКТ

Все пространство первого этажа является открытым, зоны перетекают одна из другой. Из прихожей нам открывается вид на гостиную, столовую, и лестницу. От наших глаз за дверями скрываются лишь помещения санузла и гардероба. В кухонной зоне есть кладовая, для хранения продуктов и кухонных гаджетов. Из просторной гостиной есть выход на просторную террасу. В доме есть технические помещения, такие как мастерская и котельная, связь с которыми осуществляется через гараж, в котором можно расположить два автомобиля. Так же в доме расположена кладовая для уличного инвентаря, с доступом через улицу.

ДИЗАЙН

Этот санузел идеально вписывается в концепцию современного, стильного и продуманного до мелочей пространства.
Зеркало во всю ширину стены визуально расширяет пространство, а акцентное панно из зелёного камня в глубине санузла создаёт эффектный контраст и природную гармонию. Подвесной светильник с мягким свечением завершает композицию, добавляя интерьеру тепла и уюта.
Отдельное внимание заслуживает удобный душ для собак, встроенный в нишу. Компактная зона с полками для ухода за питомцами оформлена в едином стиле с ванной комнатой, обеспечивая комфортное купание без лишних брызг.
Стены и душевой уголок отделаны светлым мрамором с тонкими прожилками, что добавляет пространству лёгкости и благородства. Пол из тёплого дерева создаёт мягкий контраст, а золотые акценты в сантехнике и декоре привносят нотки роскоши. Подвесной шкаф с деревянной текстурой дополняет естественную палитру, а над ним расположена стильная раковина с круглой чашей.
Этот интерьер — сочетание уюта, природы и стильной функциональности, идеально подходящее для комфортного отдыха.
Элегантное металлическое ограждение с тонкими золотыми прутьями добавляет интерьеру легкости и изысканности.
Этот холл объединяет эстетику и комфорт, создавая стильное, но при этом уютное пространство, идеально подходящее для отдыха и переходной зоны между комнатами.
Мягкая, точечная подсветка создает приятную атмосферу, а продуманная организация всех элементов делает процесс ухода за вещами удобным и приятным.
Одним из ключевых элементов дизайна стало потолочное оформление из дерева, которое добавляет текстурности и делает пространство более уютным, за которыми скрываются системы кондиционирования дома.
Встроенные шкафы обеспечивают достаточное количество мест для хранения бытовой химии, белья и других необходимых аксессуаров, при этом оставаясь незаметными и не перегружая интерьер.
Основной цветовой акцент сделан на светлых, нейтральных тонах, что визуально расширяет пространство и делает его более светлым и чистым. Белые фасады мебели сочетаются с теплыми деревянными акцентами, а мягкое освещение придает уют и комфорт.
При проектировании постирочной комнаты мы сосредоточились на создании максимально функционального, эргономичного и визуально гармоничного пространства. Компактная планировка позволила разместить все необходимые элементы: стиральную и сушильную машины, зоны хранения, рабочую поверхность для ухода за вещами и место для глажки.
Нам хотелось, чтобы ванная стала не просто функциональным местом, а зоной отдыха, где можно расслабиться и насладиться моментом. Здесь все построено на балансе естественных текстур, мягкого света и эргономики, создавая пространство, в котором приятно находиться каждый день.
Душевая зона выполнена в одном уровне с полом, без порогов, что делает пространство более целостным и удобным. Освещение продумано таким образом, чтобы создать расслабляющую атмосферу: точечные светильники равномерно освещают помещение, а подвесные лампы добавляют уюта.
Зеркало с мягкой подсветкой придает помещению глубину, а встроенные ниши с подсветкой не только удобны, но и подчеркивают естественную красоту материалов.
Концепция этой ванной комнаты основана на сочетании минимализма и природных материалов, создавая гармоничное и уютное пространство. Нам хотелось добиться ощущения легкости и уюта, используя теплые бежевые оттенки, текстуру натурального камня и дерева. Основной акцент сделан на чистых линиях и функциональности: подвесная мебель создает эффект невесомости, а скрытые системы хранения обеспечивают порядок, не перегружая интерьер.
Натуральный деревянный пол придает пространству тепло, подчеркивая естественную элегантность интерьера. Потолочное и подвесное освещение с черными акцентами дополняет композицию, создавая мягкие световые линии, визуально расширяющие пространство. Этот кабинет — идеальный баланс стиля и функциональности, место, где приятно погружаться в работу и находить вдохновение.
Вторая часть комнаты отведена под зону отдыха — у стены разместился лаконичный серый диван с декоративными подушками и легким пледом, создающий атмосферу уюта и расслабления. Стены окрашены в светло-серый оттенок, служащий идеальным фоном для стильного декора: на одной из них расположилась абстрактная картина в нейтральных тонах, а напротив рабочего места — телевизор.
Кабинет сочетает в себе элегантную сдержанность и уютную атмосферу. Пространство наполнено естественным светом, который мягко проникает через большие окна, украшенные строгими жалюзи. Рабочая зона оформлена лаконично и функционально: встроенный деревянный стол словно парит в воздухе, гармонично сливаясь со стеной. Над столом возвышаются открытые полки с книгами, стильными аксессуарами и элементами декора, поддерживая общее ощущение порядка и легкости.
Гардеробная зона оформлена в тех же природных оттенках: просторные открытые стеллажи и аккуратные ящики позволяют организовать хранение одежды и аксессуаров, сохраняя эстетику и порядок. Благодаря удачному зонированию, комната ощущается просторной, светлой и гармоничной — идеальным местом, где можно мечтать, учиться и наслаждаться каждым днем.
Рабочая зона сформирована встроенные стеллажами с книгами и стильным декором, которые опоясывают пианино и плавно переходят в письменный стол, выполненный в натуральных оттенках дерева.
Подвесное плетеное кресло-кокон с мягкими подушками, является идеальным местом для чтения и отдыха. Рядом разместились живые растения, которые придают интерьеру свежесть и природную динамику. Освещение выполнено в виде трекового шинопровода и нескольких подвесных светильников с разными по форме плафонами, что делает атмосферу в комнате особенно теплой и уютной.
Теплый оливковый оттенок стен наполняет интерьер природной мягкостью, а сочетание натуральных материалов, таких как дерево и ротанг, придает комнате особый шарм. Угол комнаты занимает невысокая кровать с текстильным изголовьем, украшенная подушками и уютным пледом в тон общему цветовому решению. Над кроватью на стене висит минималистичная картина с песчаным пейзажем, добавляющая пространству художественный акцент.
Эта детская комната для девочки в частном доме выполнена в уютном и естественном стиле, создавая гармоничное пространство для отдыха, учебы и творчества. Она объединяет в себе разные зоны, отвечающие запросам юной девушки.
Большие окна с черными рамами обеспечивают максимальное проникновение дневного света, что делает пространство еще более воздушным.Большие окна с черными рамами обеспечивают максимальное проникновение дневного света, что делает пространство еще более воздушным.
Классические филенчатые двери и стены с молдингами гармонично сочетаются с современными минималистичными деталями, такими как встроенные ручки на шкафах и скрытые источники освещения.
Главные декоративные элементы — живые растения в стильных горшках, картина с изображением зелени, а также текстильные элементы, такие как легкие полупрозрачные шторы и ковер с ненавязчивым узором.
Интересные световые решения включают встроенные линейные потолочные светильники, теплую подсветку по периметру потолка и настенные бра с латунными элементами.
В зоне отдыха расположен стильный модульный диван в оливковом оттенке с мягкими подушками. Дополняет композицию компактный пуф и дизайнерский журнальный столик с черной глянцевой поверхностью и золотыми вставками.
Доминируют теплые светло-бежевые и молочные оттенки, создающие ощущение легкости и уюта. Акцентными элементами выступают глубокий зеленый - в мебели и растениях, и благородный золотой -в деталях.
Этот холл на втором этаже частного дома оформлен в современном стиле с элементами неоклассики. Интерьер выдержан в светлой, теплой гамме, с акцентами на натуральные материалы и благородные детали.
Так же при спальне располагается ванная комната, которая продолжает общую концепцию спальни, используя натуральные материалы и зеленую палитру. Керамическая плитка с зеленым узором, уложенная "елочкой", придает интерьеру динамику и свежесть. Тумба с деревянными фасадами, подвесные светильники и латунные элементы создают гармоничный баланс между элегантностью и теплом.
При спальне находится гардеробная оформлена в светлых бежевых тонах с акцентом на текстуру дерева. Организация хранения тщательно продумана и делится на пополам на мужскую и женскую зону включая в себя открытые и закрытые полки, ящики для аксессуаров и штанги для одежды. Потолок с черными рейками и встроенной подсветкой добавляет глубины пространству и делает интерьер более стильным.
Интерьер выполнен в спокойной природной гамме с акцентом на зеленые и древесные оттенки. Центральным элементом комнаты является большая кровать с мягким серым изголовьем, дополненная текстилем в зеленых тонах. Подсветка по периметру стены создает мягкое рассеянное освещение, подчеркивая уютную атмосферу. Зеленое кресло, расположенное рядом с туалетным столиком, добавляет интерьеру гармонии и функциональности. Живое растение в углу дополняет природную концепцию пространства.
Этот гостевой санузел сочетает в себе функциональность, элегантность и продуманную эргономику. Натуральные материалы и теплые оттенки создают уютную и гармоничную атмосферу, а грамотное освещение подчеркивает детали интерьера.
Двери прихожей ведут хозяев и гостей дома в функциональные пространства гардероба
Внимание привлекает эффектная дизайнерская люстра, состоящая из множества стеклянных сфер, которые напоминают гроздья росы и создают воздушное, легкое сияние в пространстве.
Столовая плавно соединяется с остальным интерьером, поддерживая общую концепцию легкости, элегантности и слияния с природой. Это идеальное место для уютных семейных ужинов и торжественных приемов.
Эта столовая зона сочетает в себе элегантность, уют и современную эстетику. В центре композиции – большой обеденный стол с массивной основой и деревянной столешницей глубокого оттенка, вокруг которого расположены стильные стулья с мягкой обивкой в оливковом цвете и изящными металлическими ножками с золотистым покрытием. Большие окна с полупрозрачными шторами наполняют зону естественным светом, создавая теплую и уютную атмосферу. В интерьере гармонично сочетаются природные материалы: древесина, металл и стекло, а живые растения и золотые акценты придают пространству благородность и стиль.
Остров из натурального деревяного слэба подчеркивает деревенские мотивы дизайна и служит фокусной точкой в пространстве. Мягкое, теплое освещение подчеркивает особенности кухни. Дизайн направлен на создание гармоничного сочетания современных и деревенских элементов, обеспечивая гостеприимное и спокойное кухонное пространство. За кухонным фасадом скрывается удобная кладовая зона.
Открытая планировка соединяет гостиную с кухней, оформленной в глубоком оливковом цвете, что придает интерьеру сбалансированность и природную палитру. Черные акценты в светильниках и фурнитуре создают выразительные контрасты, подчеркивая геометрию пространства. Кухонная зона органично сочетает в себе деревенские и современные элементы, создавая уютную и гостеприимную атмосферу загородного дома. Камина с живым огнем усиливает ощущение загородного уединения.
Мягкий диван глубокого терракотового оттенка с модульной композицией подчеркивает расслабленную и стильную обстановку. Он располагается в зоне, залитой естественным светом, который проникает через панорамные окна, наполняя комнату теплотой и свежестью.
В интерьере присутствуют акцентные детали: эффектное большое панно с изображением экзотических растений и животных, добавляющее характер и индивидуальность пространству, а также живые растения в стильных кашпо, усиливающие ощущение связи с природой.
Эта гостиная воплощает в себе гармонию природных текстур, теплых оттенков и элегантного минимализма. Центральным элементом пространства является уютный камин с облицовкой из светлого камня, создающий атмосферу уюта и умиротворения.
Прихожая плавно переходит в пространство с панорамными окнами и видом на уютный зеленый внутренний двор, создавая ощущение связи с природой и гармонии с окружающим миром.
Возле стены стоит изящная консоль с рифленым фасадом, на которой размещена декоративная ваза с сухоцветами, подчеркивающая природную эстетику интерьера. Рядом расположены подвесные светильники с золотыми акцентами, придающие интерьеру нотки изысканности.
Гармоничное сочетание светлого фона с акцентными деталями – золотой фурнитурой, стильным пуфом терракотового оттенка на металлическом каркасе и лаконичными черными элементами, такими как вешалка для одежды. Большое зеркало с тонкой золотой рамой визуально расширяет пространство, отражая естественный свет, который проникает через панорамные окна.
Эта прихожая оформлена в современном стиле с элегантными элементами минимализма. Светлые стены и двери с тонкими декоративными молдингами создают атмосферу легкости и уюта. Напольное покрытие в теплых древесных тонах добавляет естественности и гармонии.
1 этаж
2 этаж